Рис. 2.31. Конструктивная схема работы механизма фаз газораспределения: 1 – датчик положения коленвала; 2 – датчик положения распредвала; 3 – блок PCM; 4 – масляный управляющий клапан (OCV); 5 – исполнительный механизм изменения фаз газораспределения; 6 – электрический сигнал; 7 – гидравлическое давление
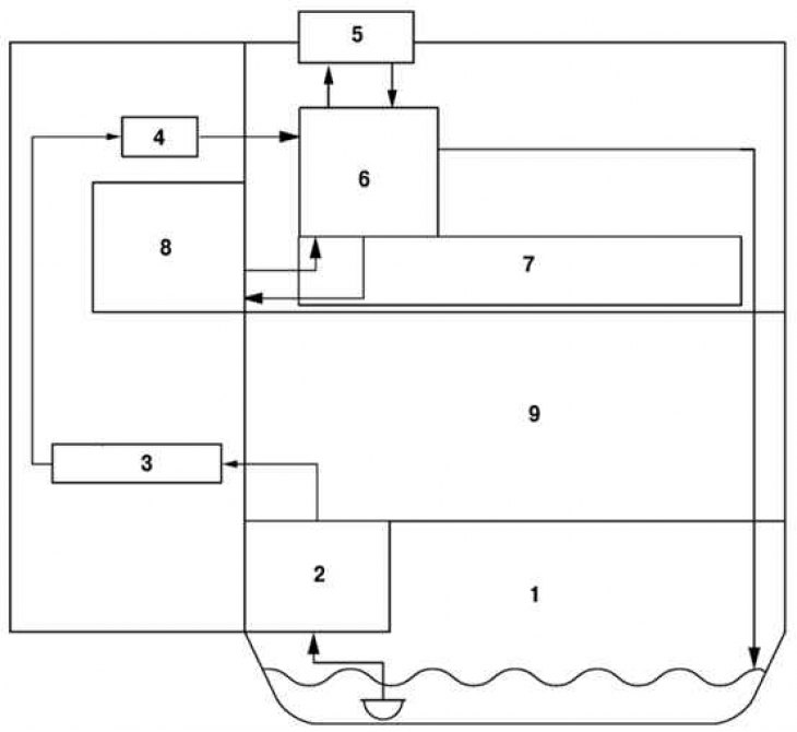
Механизм изменения фаз газораспределения состоит из исполнительного механизма, масляного управляющего клапана (OCV), датчика положения коленвала, датчика положения распредвала и блока PCM (рис. 2.31, 2.32 и табл. 2.12).
Рис. 2.32. Блок-схема системы гидравлического давления: 1 – масляный поддон; 2 – масляный насос; 3 – маслопровод; 4 – масляный фильтр; 5 – масляный управляющий клапан (OCV); 6 – адаптер масляного управляющего клапана (OCV); 7 – распредвал; 8 – исполнительный механизм изменения фаз газораспределения; 9 – блок цилиндров
[Информация скопирована с портала MAZBOOK.RU]
